home

PROJETS    EXPERTISES    PROFIL    PUBLICATIONS    MEMOIRES    CONTACT

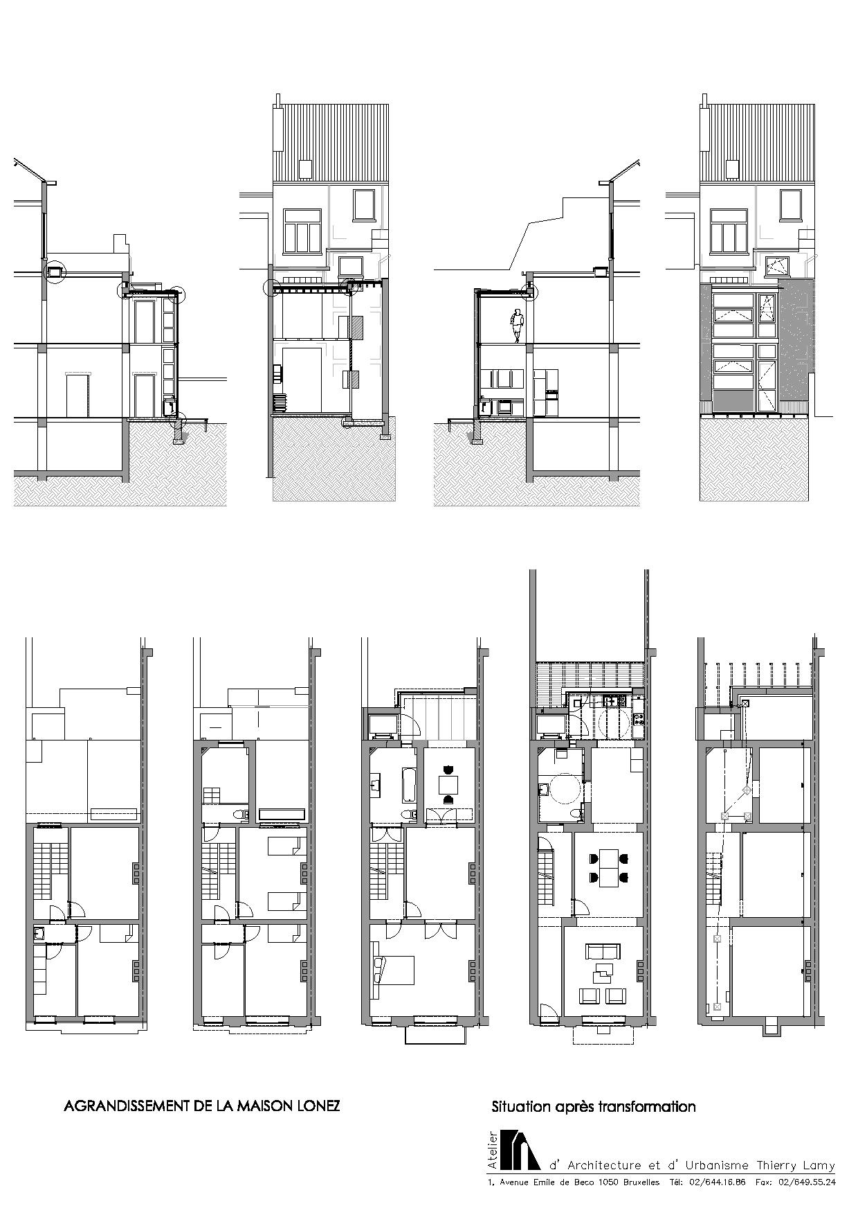
Agrandissement d'une maison à Ixelles (2008)

AGRANDISSEMENT D'UNE MAISON A IXELLES (2008)   retour

Cet agrandissement a été réalisé pour permettre l'insertion d'un ascensseur...

zoom    zoom







 
Top

CATEGORIES : Logements individuels   ---   Logements collectifs  ---   Habitat groupé

                      Socio-culturel  ---   Commercial  ---   Industriel  ---   International

architecturethierrylamy.be Web